Capital City Christian Church
Floor Plans for Networking
Updated: 030224

Information Technology Documentation



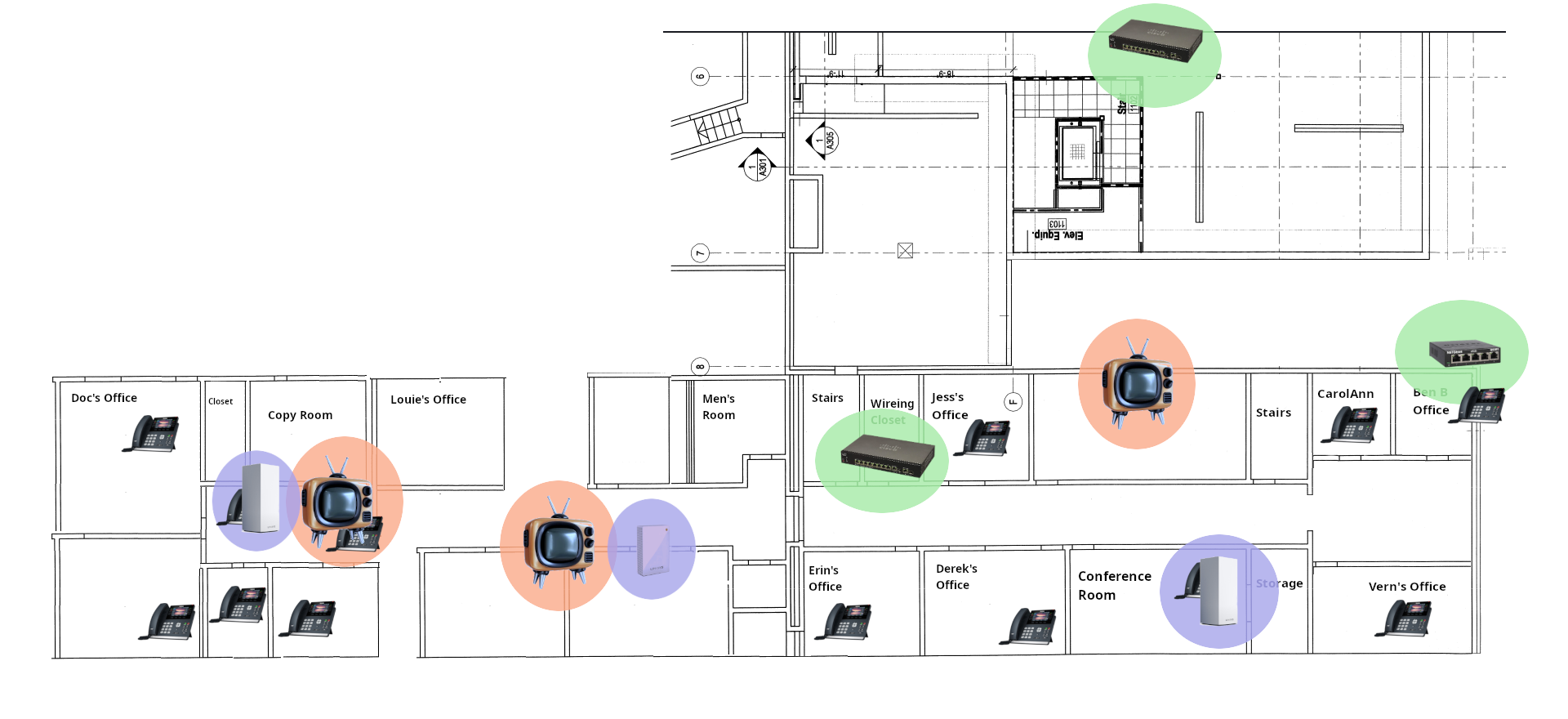
This page is under construction. I am developing it into an interactive set of floor plans that identify the locations of the network infrastructure components.


Bottom Floor


Second Floor West


Second Floor East


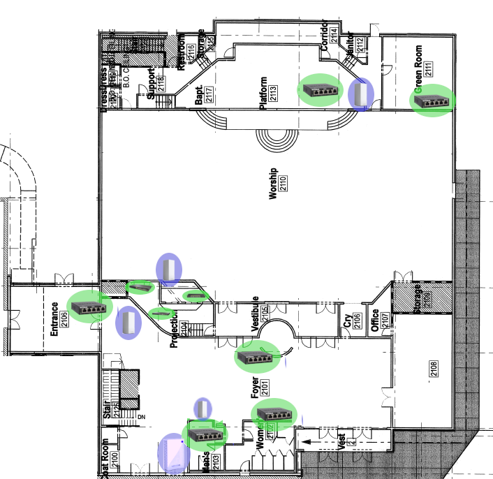
Third Floor


End of Page